Gå till projektsidan
Bostad 1-1002 - Brf Roslagsporten
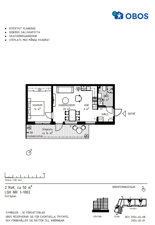
Bostadsfakta
- Pris
- 2 895 000 kr
- Antal rum
- 2 rok
- Ägandeform
- Bostadsrätt
- Inflyttning
- Inflyttningsklart
- Månadsavgift
- 4 486 kr/mån
- Boarea
- 50 m²
- Bostadstyp
- Lägenhet
1/17
Om bostaden
Effektivt planerad lägenhet med stor uteplats som rymmer önskvärt möblemang. Lägenheten erbjuder en generös sällskapsyta och det fullt utrustade köket ligger i öppen planlösning mot det rymliga vardagsrummet. Sovrum med plats för dubbelsäng och en rymlig skjutdörrsgarderob som maximerar förvaringen. Badrummet är generöst och stilrent med bland annat, handdukstork, dusch och kombimaskin. Bostaden är inredd i vår designlinje Höst som har vitlaserad ekparkett och går i beige toner i kök och badrum. Bostaden är inflyttningsklar – tillträdet är flexibelt.
Välkommen hem!
Kontakta oss


















