Öppen planlösning – fördelar, nackdelar och inredningstips
Gillar du att sällskapa kocken från vardagsrumssoffan, eller tycker du mest att ljuden från köket stör? Den öppna planlösningen som länge varit populär i nyproducerade hem har sina för- och nackdelar. Här delar vår chefsarkitekt Frida Andersson med sig av sina tankar. Dessutom får du inredningstips!

Behovet av billigare bostäder fick hemmen att öppnas upp
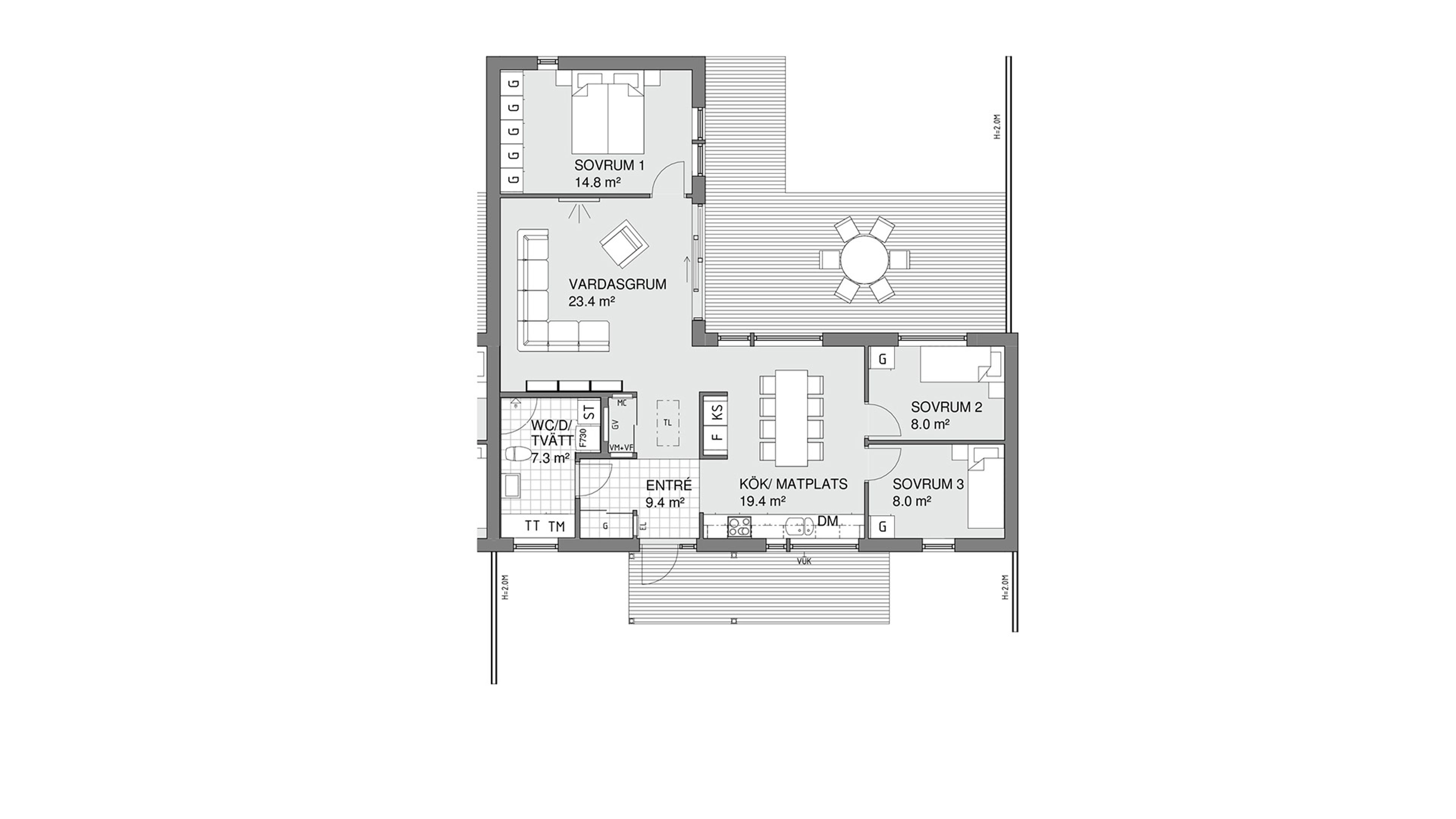
Ett modernt hem är ofta förknippat med öppen planlösning. Men hur startade egentligen trenden? Jo, den gjorde entré i Sverige på 60-talet. Men det var först på 90-talet, när bostadspriserna behövde hållas nere, som de öppna ytorna blev allt vanligare i nyproducerade hem. Att slå samman kök, vardagsrum och matplats var ett sätt att skapa rymd, och samtidigt nyttja alla kvadratmetrar.
– Idag behöver vi jobba med yteffektiva bostäder för att hålla priserna på en rimlig nivå. Den öppna planlösningen är det som ger bäst flöde i rummet och uppfyller våra kunders önskemål. Annars hade ytorna känts ganska små, förklarar Frida.
Socialt, ljust och flexibelt
Den öppna planlösningen har många fördelar, inte minst när det gäller att umgås. Alla kan pyssla med sitt, och ändå vara i samma rum. Du kan hålla ett öga på barnen medan du fixar i köket eller hålla gäster sällskap medan du lagar middag. Frukost kan kombineras med morgon-tv, läxhjälp med diskplock, bullbak med pyssel i vardagsrummet. Färre väggar gör att du kan vara mer kreativ med inredningen och möblera om efter behov. Ofta upplevs bostaden som större och ljusare.

I den öppna planlösningen är det enkelt att umgås, eller pyssla med sitt i samma rum.
Men lite svårare att vara ifred
Baksidan av den öppna planlösningen är att det är svårare att stänga om sig. Disken kan pocka på uppmärksamheten när du jobbar hemifrån. Dofter från matlagning kan sprida sig och slammer i köket kan störa tv-tittarna. Vill du vara ifred får du helt enkelt smita undan, och det blev särskilt tydligt under pandemin när många spenderade mer tid hemma.
– Vi har sett en trend att fler önskar en mer tydlig indelning mellan kök och vardagsrum, berättar Frida, och vi har tagit fram ett antal projekt där planlösningen är ett mellanting. Ljusa och öppna ytor, men med tydliga avgränsningar mellan rummen.

I projektet Brf Längtan är det öppet men ändå avgränsat mellan kök och vardagsrum.
Koppla av och hitta arbetsro i andra rum
– I många av våra bostäder ritar vi in ett allrum som är avskilt från den sociala delen, fortsätter Frida, där kan komma ”undan” och skapa det rum du behöver i livet just nu.
Kanske är det ett tv-rum för mysiga filmkvällar, ett lekrum eller ett bibliotek med sköna läsfåtöljer. I många av våra projekt kan du använda outnyttjade utrymmen till en arbetsplats, till exempel i hallen eller ovanför trappen.

Utrymmet ovanför trappen kan bli en perfekt plats för hemmakontoret.
Vilken planlösning drömmer du om att ha? Upptäck alla våra bostäder här.
5 inredningstips för öppen planlösning
1. Skapa visuella gränser.
Använd möbler, färger och belysning för att skapa zoner för matlagning, avkoppling och arbetsdel. Öppna bokhyllor och stora mattor är bra för att skapa ”rum i rummet” utan att förlora den luftiga känslan.
2. Använd samma färgskala
I köket och vardagsrummet är de snyggt med samma färgskala för att skapa en enhetlig känsla. Det behöver inte vara exakt samma färg, men färger som kompletterar varandra skapar en harmonisk känsla.
3. Maximera ljusflödet.
En av fördelarna med öppen planlösning är att ljuset kan flöda fritt. Se till att inte blockera fönster och använd gärna ljusa färger och tunna gardiner.
4. Håll det organiserat.
Ett öppet utrymme kan snabbt se rörigt ut om var sak inte har sin plats. Satsa på smarta förvaringslösningar så att du enkelt kan stuva undan dina prylar.
5. Anpassa efter dig.
Tänk på hur du och din familj använder utrymmet och möblera därefter. Behöver ni ett stort matbord för många gäster, eller ska soffan få ta största platsen?


