Gå till projektsidan
1-1103
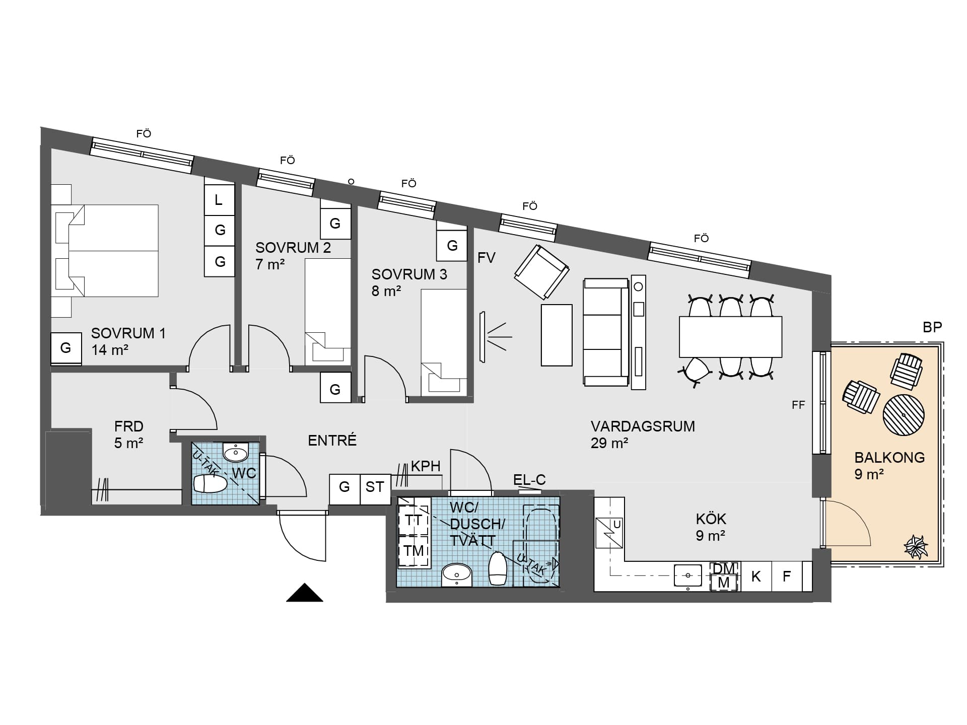
Bostadsfakta
- Pris
- 4 750 000 kr
- Antal rum
- 4 rok
- Ägandeform
- Bostadsrätt
- Inflyttning
- Planerad inflyttning från Kvartal 3 2027
- Månadsavgift
- 6 813 kr/mån
- Boarea
- 94 m²
- Bostadstyp
- Lägenhet
1/2
Om bostaden
Rymlig fyra med stor flexibilitet! Denna bostad på 94 kvm har tre sovrum och ett stort vardagsrum med plats för umgänge. Köket är generöst planerat och anslutet till matplatsen. Extra WC, stort förråd och en möblerbar balkong på 9 kvm ger en bekväm vardag.
Kontakta oss



